施主案タイトル
back

 

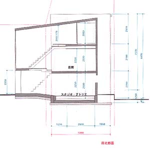
再考案図面
再考案図面2

ほら、ちゃんと階段2つ収まってるでしょ?(私がえらそうに言うことではないが)

ちなみに,全然窓がないのはこの土地の立地と,私の仕事の関係でこれで良いのです。(でも、採光条件は満たされているところがすごい)

回りが建物に囲まれる可能性のある旗状地のため、お隣さんとかとの窓の位置関係とか,後で日当たりが悪くなったとか言わなくて済むように,悪あがきせず周りが建物に囲まれても採光が取れるような設計になっています。(つまりトップライトですね)
1Fは、コンピュータのディスプレイをにらんでいる仕事なもんで,日当たりは画面に写りこんで結構邪魔なんです。

うすぐらーい中でこもって仕事するのも傍から見ると"苦労して仕事してます!"って感じで良いかも。

まあ、それは冗談としてこぎれいな”事務所”と言うより”ファクトリー"みたいな 感じを目指しています。